
is provided as a reference to explain terms used in some of the following entries
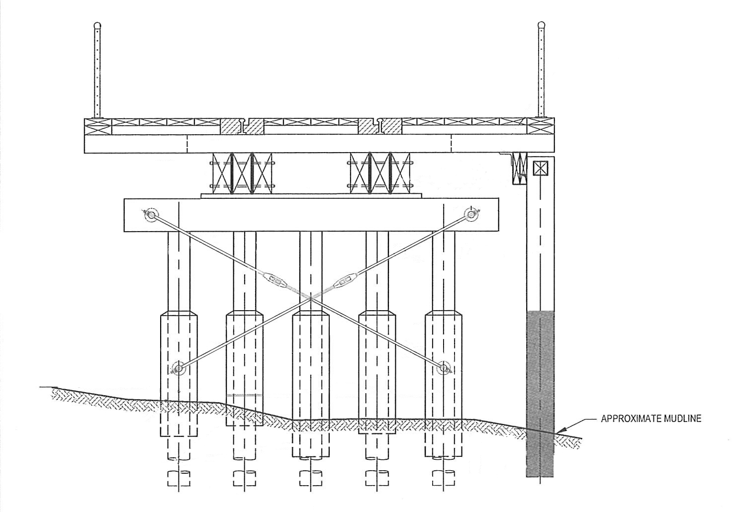
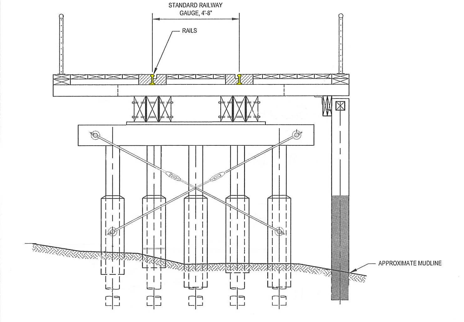
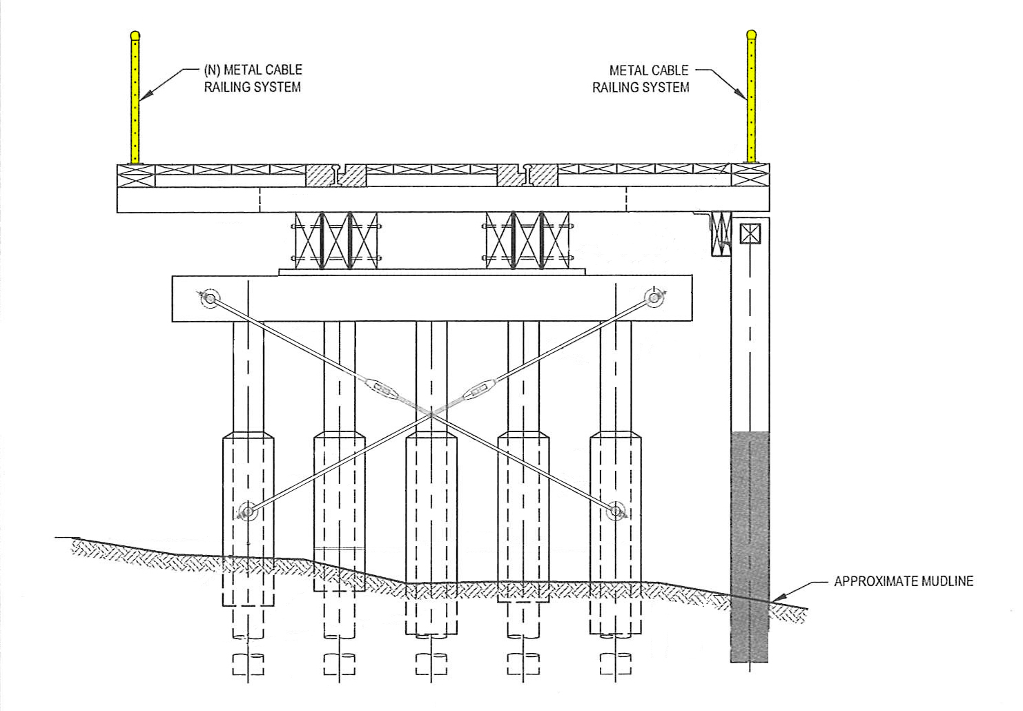
Trestle Components Illustration by Robert Dougherty
Click the image in the right hand column to see or download the media or document at full size
| Date | Image or PDF | |
3/21/03 | Archaeological Resource Service - "AN EVALUATION OF CULTURAL RESOURCES ALONG THE PROPOSED PETALUMA TROLLEY MASTER PLAN PROJECT" Page 24
| ![]() |
3/21/03 | The 3 pages above were extracted from the full document reproduced here: “An Evaluation of Cultural Resources Along the Proposed Petaluma Trolley Master Plan Project, Petaluma, Sonoma County by Cassandra Chattan, Archaeological Resource Service | ![]() |
5/20/03 | Update on revised 2003 CPSP (Central Petaluma Specific Plan) to members of Heritage Homes, From Chris Stevick, President of Heritage Homes Alerting members to push City Council to add 3 changes to the Central Petaluma Specific Plan before approval at the Council's next meeting:
| ![]() |
2000-2005 | Paul Marangella, hired by the City of Petaluma to be Director of Economic Development and Redevelopment, held control of redevelopment funds and had his own ideas about the Railroad Trestle. He wanted to start by completely removing the original Trestle and then building a modern concrete and steel platform to replace it. He had no interest in restoring the trestle as an historic structure. | |
2000 | The engineering firm known as CSW[St]2 had been hired (previous to 1/29/02) to assess the structural integrity of the trestle and develop design solutions for making it safe. | |
3/9/04 | CSW[St]2 sends a letter to Paul Marangella that they have revised their proposal in accordance with his request Editor's comment:
| ![]() |
| 10/13/04 | Chris, in his role as president of the Petaluma Heritage Homes association (2001-2004), had several private meetings with Paul Marangella. Trying to convince HH to give up on trying to restore it, Marangella insists the downtown Trestle can’t be saved. In support of his argument he makes several assertions that Chris, in turn, sought evidence to refute. (though made often, most of the following statements come from Chris’s notes made at a meeting with Paul Marangella and John FitzGerald on October 10, 2004) Statement 1. “The rotten piles are too far gone.“
Statement 2. “No engineer would put his stamp on a wooden trestle.“
Statement 3. “The State Coastal Conservancy would not allow it.”
Statement 4. “SMART sees trestle as liability”.
Statement 5. "It isn't a historic site, so not included in the
When Chris was still unwilling to go along with the Trestle demolition, Marangella resorted to threats to withdraw support for the Trolley Project, an attempt to intimidate him into approving the plan. At the time, Chris was trying to get the Petaluma Trolley project off the ground using the existing tracks, a project later abandoned for financial reasons. Despite threats he refused to endorse the demolition of the Trestle. | |
| 8/4/04 | Argus Article, "River Promenade Taking Shape" describes Marangella's preferred plan (demolish the Trestle).
| ![]() |
| 8/12/04 | A letter to Dusty Resneck (Petaluma Pedestrian& Bicycle Advisory Committee) from Joyce Clark, PE, Program Manager, Economic Development and Redevelopment, City of Petaluma, asking for clarity in reference to the Argus article of 8/4/04 about the Trestle being unsalvageable. Her reply was forwarded to a member of Heritage Homes.
| ![]() |
| 11/23/04 | C.V. Larsen Co. sends letter to Chris Stevick, reviews exiting Trestle and estimates cost of rehab at between $1,000 and $2,000 per lineal ft. Trestle is approximately 500 ft long, so high estimate = $1,000,000. | ![]() |
| 12/17/04 | Paul Marangella presents plans and concept drawings of how nice the River would look with Trestle gone. Described as “win/win.”
| ![]() |